
Works Have Commenced, Occupy End of 2026
Works have commenced on Sheds of Spotswood, Cadence’s exciting new office and warehouse development just over the West Gate Bridge. Blending elevated design with everyday functionality, Sheds of Spotswood is purpose built for a new generation of businesses seeking the perfect launchpad to elevate their product, process and profit.

Why Here Why Now
Strategically Placed
At Sheds of Spotswood, location is everything. Positioned directly opposite local landmark Scienceworks, the site sits just 6km from Melbourne’s CBD, 3km from the Port of Melbourne, and a short 400m from the new West gate Tunnel.
Purpose-built for growth and accessibility, this highly connected address places your business at the centre of opportunity — surrounded by a skilled workforce, exceptional local amenity, and seamless transport links by bike, rail, and road.


Form Flex Flow
A distinctive collection of just 24 contemporary warehouse offices, Sheds of Spotswood has been purposefully designed for efficiency, flexibility, and the demands of modern business. Each space features generous spring heights and post loads for maximum racking capability, alongside high-quality inclusions that deliver tangible benefits for occupiers — from integrated solar panels that reduce operational costs, to expansive glazing to maximise natural light.
Thoughtfully landscaped breakout areas and a premium office fitout that includes showers and secure bicycle parking further enhance the everyday working experience. Positioned in a prime, tightly held city-fringe location, Sheds of Spotswood offers an exceptional level of versatility, functionality, and enduring value.
Features
→ Generous onsite carparks
→ City fringe location 400m from the West Gate freeway and on ramps
→ Upgrades available for businesses with high electrical demand or gas requirement
→ Solar panels for each unit
→ Bespoke design that includes showers, bike parking, expansive landscaped areas and glazed facades.
→ Covered rear loading to selected units
Location & Lifestyle


Buildings That Improve Business Performance
Flexibility
A range of unit sizes are available as well as options for attached hardstand storage yards to suit all business needs.
Functionality
Warehouses feature up to 8m high springing heights and 5t post loads for generous stacking capabilities.
Fixtures + Fittings
High-quality fixtures and fittings and thoughtful additions such as covered rear loading, multiple RSD access points and tenant dedicated rooftop solar panels.
Landscape
Office entries will be flanked with greenery to enhance the arrival experience of customers and staff with landscape design providing breakout zones and connection with nature.
Cost Control
Common areas and individual tenancies are sub-metered separately to allow for better user control and optimisation over energy and water consumption.
Cars & Bikes
Substantial customer and employee car parking, bicycle racks and showers included as a part of the base building offering.
Natural Light
Expansive glazed facades allow for maximum natural light penetration.
Sustainability
The project makes sustainability tangible for its occupants with solar power, a rainwater harvesting system for irrigation and all materials and fittings specially selected to maximise efficiency and environmental quality.

We’Re Moving Fast
Developed by one of Australia's leading real estate development and investment businesses, Sheds of Spotswood is the first stage of Cadence's masterplanned, urban renewal precinct in Melbourne’s inner west.
Designed to accommodate a range of business types and operational needs, this limited collection of just 24 units offers a rare level of flexibility on the city fringe. A diverse mix of unit typologies is available — from high-visibility frontages to low-site-coverage warehouses with expansive concrete hardstand yards — with options for either lease or sale.
Perfectly positioned close to Melbourne’s CBD and port, Sheds of Spotswood is ideal for enterprises in e-commerce, last-mile logistics, tech manufacturing, commercial trades, or any business ready to grow in a space built for what’s next.
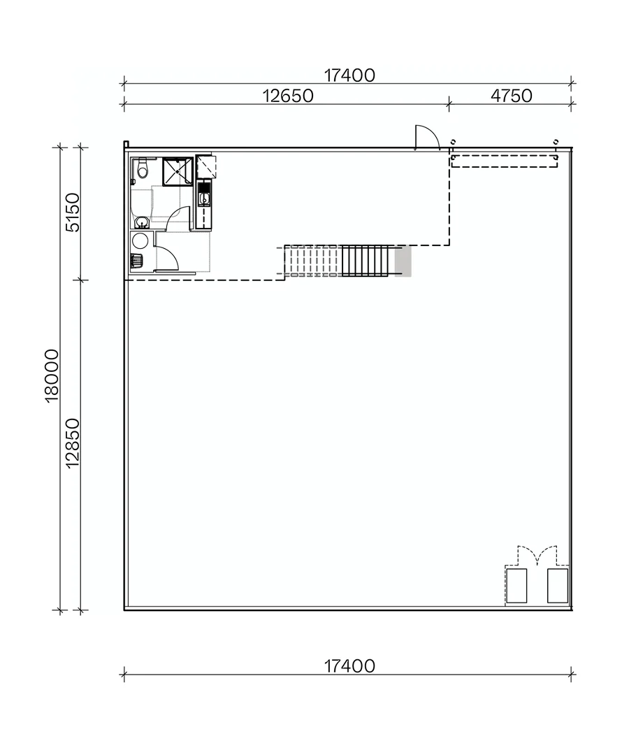
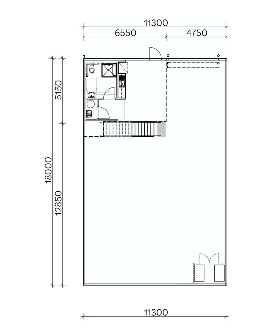
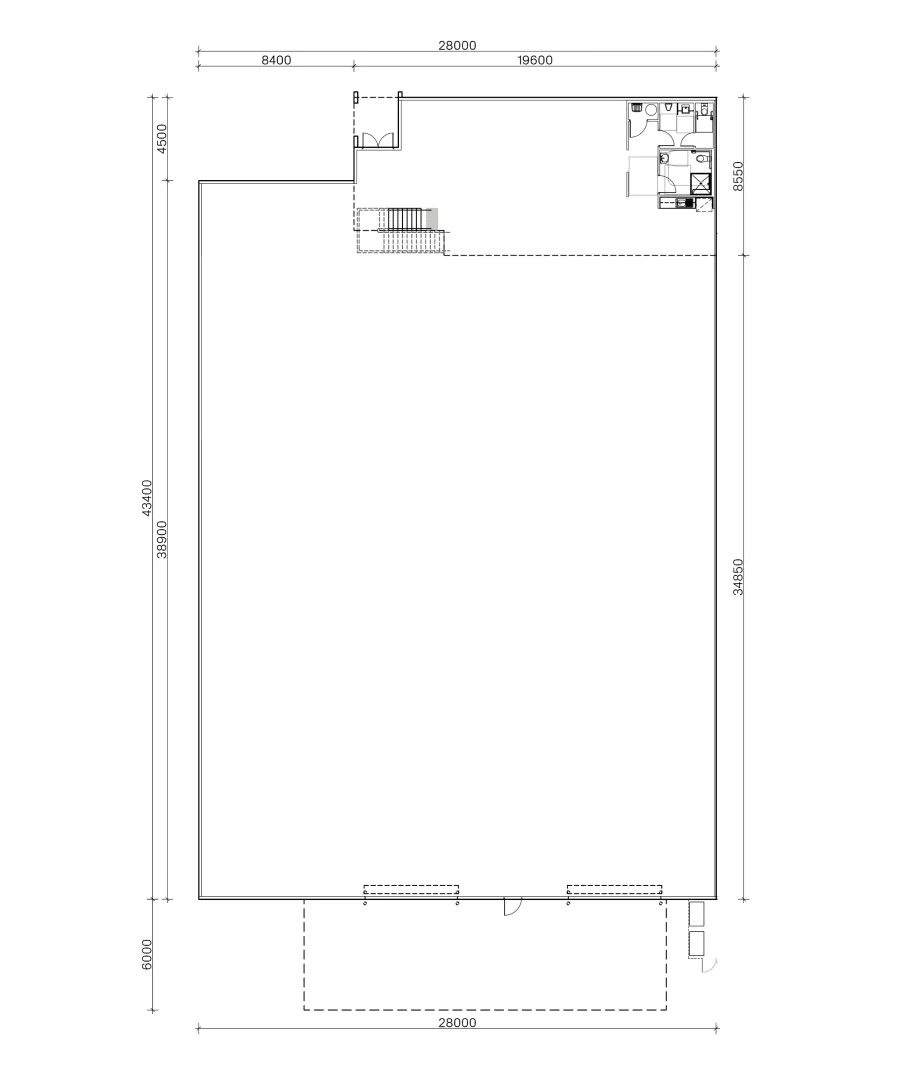
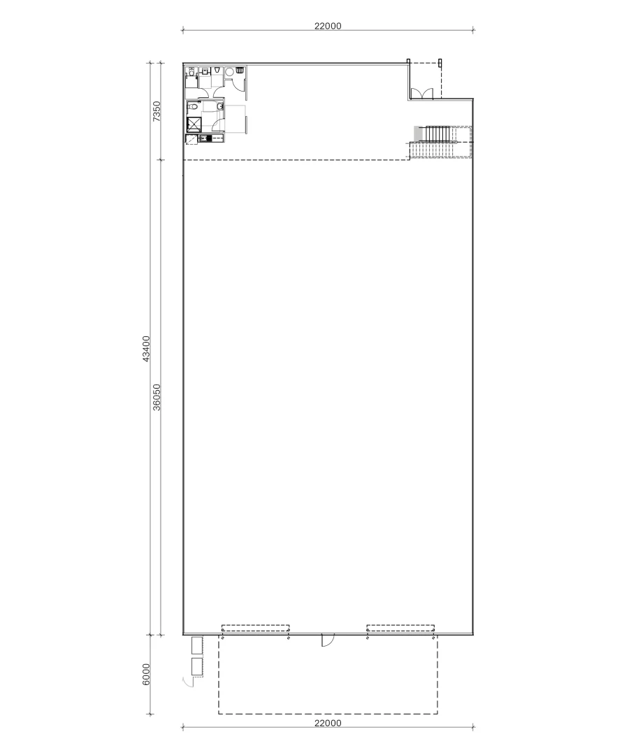
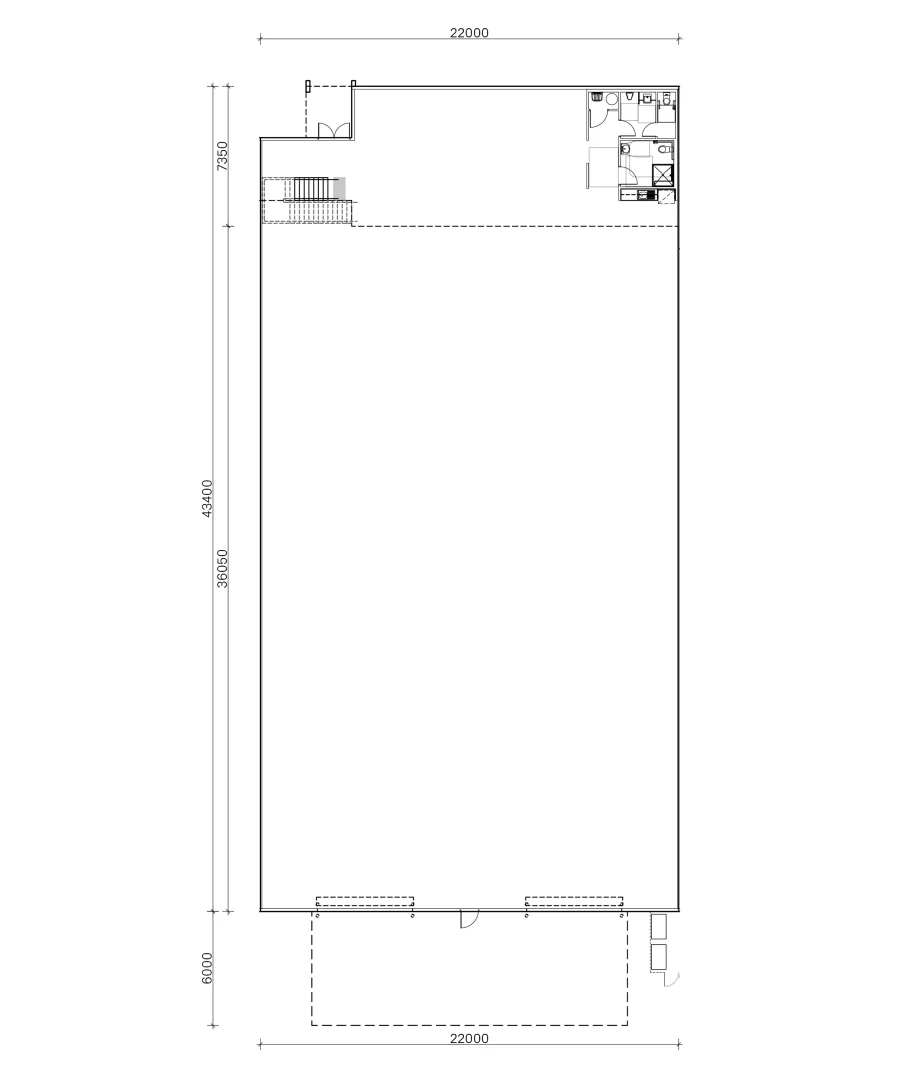
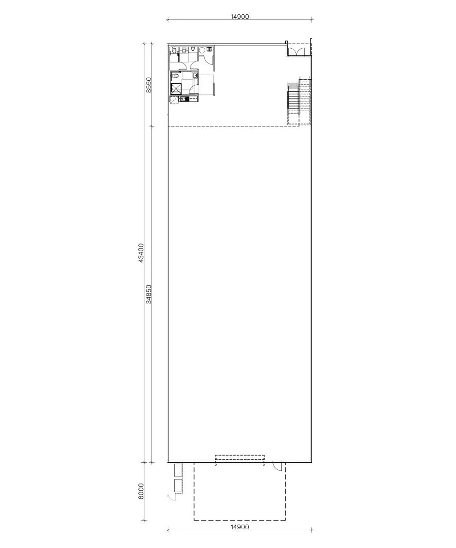
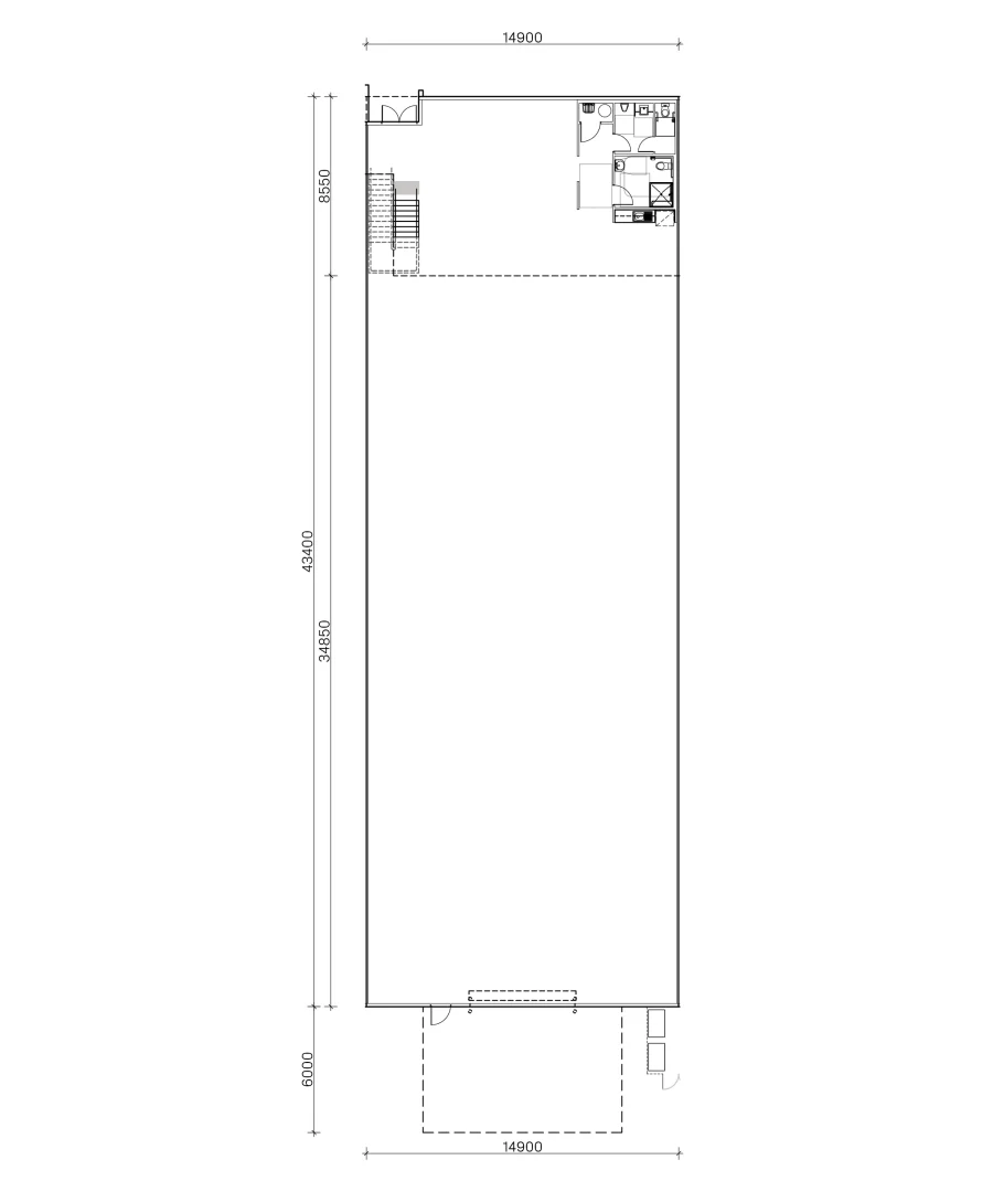
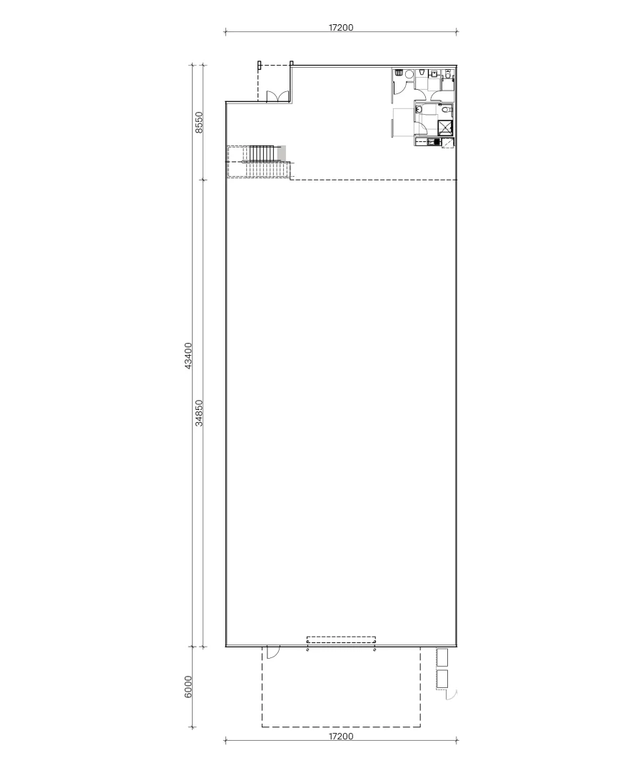
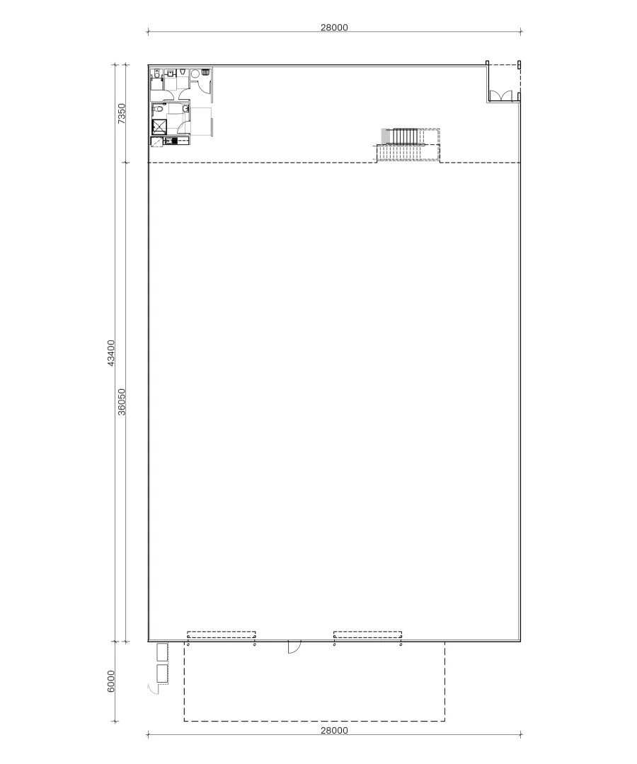
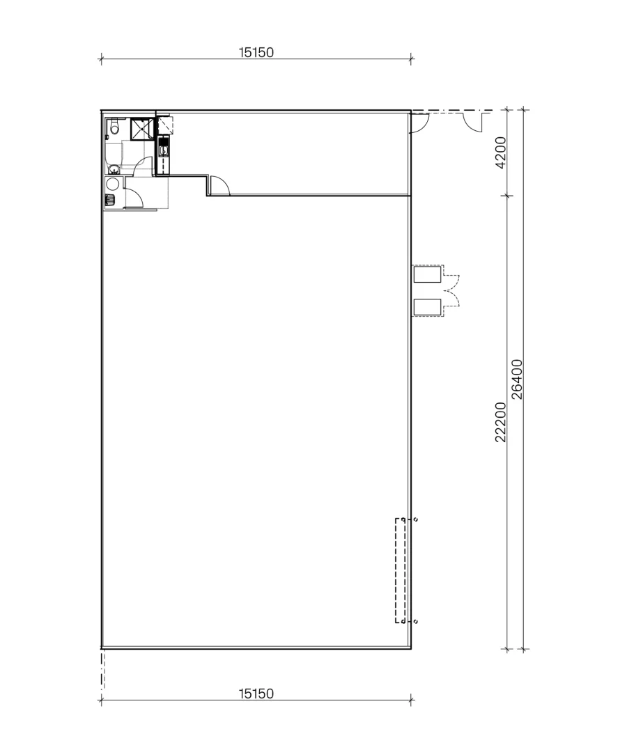
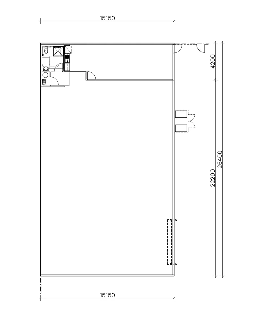
Plans & Specifications
Mezzanine
Mezzanine office space with expansive glazed facade for ample daylight penetration
Onsite Landscaping
Landscaped areas including feature facade and entry details
Spring Height
Minimum 8m high spring height
Flexible Spaces
Flexible undercroft area for use as additional office, reception or storage space
Parking
Generous on site carparking
Post Load
5tonne racking post load
Solar
Dedicated tenant solar system up to 10kW
Who We Are
At Cadence, we deliver end-to-end commercial and industrial property solutions, from development through to management. We’re known for being professional, responsive and inventive, with a strong track record in creating spaces that work. ⁽¹⁾
Ventures (inc. WIP)
Total Transaction Value ⁽⁴⁾
Assets Under Management ⁽³⁾
Pipeline ⁽²⁾
People
Fully Integrated Business Model
(1) Company Statistics as of 30 June 2025. (2) Estimated end value total developable land held by Cadence at completion. (3) Gross assets under management. (4) Total gross transactions by Cadence since inception.

Past Projects
Southside
Address
95 South Gippsland Highway,
Dandenong South, VIC 3175Site Area
80,845m²
Building Area
40,420m²
Status
Completed
Southside was designed and delivered to institutional-grade standards, achieving 5 Star Green Star certification. The estate features 6 a-grade, high-spec logistics and industrial facilities with direct access to key transport infrastructure. The development supports tenant operational efficiency while delivering long-term value through premium design, environmental credentials, and connectivity.

VISY Glass
Address
2-38 Hudsons Road
Spotswood VIC 3015Site Area
45,713m²
Building Area
35,052m²
Status
Completed
Cadence partnered with Visy to deliver a large-scale facility consolidating manufacturing and distribution operations into one centralised Melbourne location. The redevelopment rejuvenated a dilapidated site, blending modern industrial functionality with heritage elements and public art, creating one of Melbourne’s largest infill industrial projects.

Project Updates
Panels Are Going Up - Touch and Feel Now, Occupy by End of 2026
17.12.25
Since commencing works in August 2025, C3 have made substantial progress with panels now erected and roofing underway to Units 1-7. This marks a major milestone in the delivery of this premium industrial estate, enabling prospective tenants to see, touch and experience. These larger warehouses up to ~1,300 sqm will be available for lease, offering businesses the opportunity to capitalise on the newly opened West Gate Tunnel and leverage off all that this city fringe hub has to offer.
For owner occupiers or investors, a limited number of just 10 units from $999k is currently available for sale. Positioned in the most sought-after part of the estate, these units will benefit from direct connectivity to Scienceworks. Contact the appointed agents now to purchase.





Register Now
Sign up now to hear from our team, and for updates and early access to information about Sheds of Spotswood.

Contact today for further details
Ben Quennell
Joff Mithen
Glyn Bosisto
Mark Charlton

Cadence Property acknowledges the Bunurong People of the Kulin Nation as the Traditional Owners of these lands and waterways, and pay our respects to Elders past and present


































